Trilocale in vendita

Nembro, Via Trevasco
€ 299.000
3 locali 3 locali
200 Mq 200 Mq
2 bagni 2 bagni

Trilocale in vendita

Nembro, Via Trevasco

Descrizione annuncio

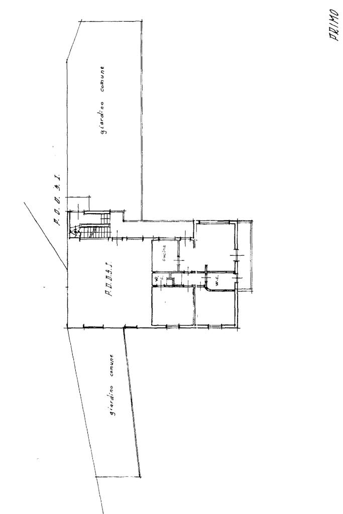
All’interno di una proprietà esclusiva, proponiamo una soluzione estremamente versatile composta da abitazione, spazi accessori e autorimesse, ideale per chi cerca casa e lavoro nello stesso contesto o per un investimento strutturato.

Al primo piano si sviluppa una superficie complessiva di circa 160 mq, già suddivisa in:
trilocale con doppi servizi, di cui uno privato in camera, con ambienti ampi e ben distribuiti e locale ufficio collegato internamente all'abitazione ma con già la predisposizione per un ingresso indipendente, ideale per attività professionale o studio privato

Al piano terra troviamo un magazzino con altezza interna di 4 metri, dotato di due basculanti, perfetto per rimessaggio, deposito o attività artigianali.

Completa la proprietà cinque autorimesse di internamente collegate l'una con l'altra.

La proprietà dispone inoltre di un’area esterna privata, con spazio verde sul retro adibito a orto e pollaio, ideale per chi desidera vivere il contatto con la natura mantenendo funzionalità e indipendenza.

Una soluzione dalle grandi potenzialità, adatta a chi cerca spazi ampi, versatilità d’uso e indipendenza, all’interno di un contesto riservato e immerso nel verde.

Mostra tutto

Nelle vicinanze

Trasporto pubblico Trasporto pubblico
Nembro Saletti
Nembro Saletti
870 m
Nembro Centro
Nembro Centro
1,1 Km
ATB
ATB
730 m
1158
1158
1,7 Km
Ricariche auto elettriche Ricariche auto elettriche
Nembro Nembrini | EnelX
780 m
Nembro Riccardi | EnelX
890 m
Municipio di Nembro | Ressolar
970 m
Nembro Stazione Teb | Ressolar
1,4 Km
Pradalunga Biblioteca | Ressolar
1,4 Km
Scuole Scuole
Scuole
890 m
Scuola Primaria
920 m
Istituto Alberghiero Alfredo sonzogni
1,8 Km
Scuola media ed elementare S. Anna
2,1 Km
Scuola secondaria di Primo Grado
2,2 Km
Farmacia Farmacia
Farmacia San Faustino
540 m
Farmacia San Martino
600 m
Farmacia Rebba
1,0 Km
Farmacia
1,8 Km
Farmacia Verzeni
2,4 Km
Supermercati Supermercati
Aldi
1,9 Km
Esselunga di Nembro
2,1 Km
Lidl
2,4 Km
Minimarket Lonno
2,6 Km
Supermercati
3,0 Km
Negozi Negozi
Invidia Outlet
1,2 Km
Upim
1,4 Km
Negozi
2,9 Km
Bar Bar
Bar
980 m
Oronero
1,4 Km
Smart 24
1,5 Km
Bar
1,7 Km
bar Primavera
2,3 Km
Ristoranti Ristoranti
Trattoria alle Piante
700 m
Tenuta Colle Piajo
820 m
Pizzeria tre Corone
860 m
Osteria del Piajo
870 m
Pizzeria Wolly
1,9 Km
Mostra tutto

Caratteristiche

Rif.:
61168502
Piano:
1 di 1 (Piano basso)
Box:
3
Posti auto:
1
Terrazzi:
1
Camere da letto:
3
Mostra tutto
Prezzo Prezzo
€ 299.000
Rata mutuo Rata mutuo
€ 1.396 / mese
Spese annue Spese annue
€ 0
Proponi il tuo prezzoProponi il tuo prezzo

Classe Energetica

E
E
E
E
E
E
E
E
E
Anno di costruzione:
1994
Riscaldamento:
Autonomo
Tipo impianto:
A radiatori
Tipo alimentazione:
Metano

Ti interessa visionare l'immobile?

Fissa un appuntamento  Fissa un appuntamento

Richiedi informazioni

Clicca su Leggi per aprire l'informativa
* Questi campi sono obbligatori

Calcola il tuo mutuo

Semplice e senza impegno
Anticipo

( % )
Mutuo

( % )

pochi semplici passi

inserisci i tuoi dati
Questionario completato
Grazie per aver richiesto un appuntamento senza impegno con un nostro Consulente del Credito e Assicurativo.

Hai inserito correttamente tutti i dati necessari e a breve riceverai una e-mail con un link da convalidare per inviare i tuoi dati.
Affiliato
Agenzia Imm.re Gorle Srl
P.zza Papa Giovanni XXIII, 16 24020 Gorle (BG)

Il nostro staff


  • Claudia Meni
    Affiliata

  • Andrea Bombardieri
    Collaboratore

  • Lorenzo Bergamelli
    Collaboratore

  • Riccardo Bergamelli
    Collaboratore

  • Samuele Bergamelli
    Responsabile

  • Christian Perico
    Collaboratore

  • Simone Previtali
    Collaboratore

  • Martina Trapletti
    Coordinatrice
P.zza Papa Giovanni XXIII, 16 24020 Gorle (BG)
Zona: Gorle-Scanzorosciate
Mostra su mappa
Affiliato
Agenzia Imm.re Gorle Srl
P.zza Papa Giovanni XXIII, 16 24020 Gorle (BG)

2026 Tecnocasa Franchising S.p.A. - P. IVA 08365160152 - Via Monte Bianco 60/A 20089 Rozzano (MI). Ogni agenzia ha un proprio titolare ed è autonoma. Privacy policy | Policy utilizzo | Cookie policy