Villa singola in vendita

Nembro, Via Enrico Fermi
€ 250.000
4 locali 4 locali
170 Mq 170 Mq
2 bagni 2 bagni

Villa singola in vendita

Nembro, Via Enrico Fermi

Descrizione annuncio

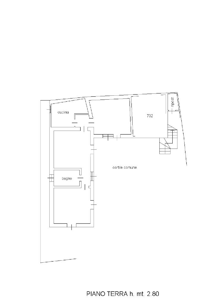
A Nembro, nella frazione di Gavarno rinnovata, proponiamo in vendita una villa singola composta da due appartamenti indipendenti, soluzione ideale per due nuclei familiari o per chi desidera un’abitazione con unità separata.

La proprietà si presenta in ottime condizioni grazie a importanti interventi già eseguiti, tra cui rifacimento del tetto e sostituzione dei serramenti.

Appartamento al piano terra – Trilocale di circa 90 mq
Composto da due ampie camere da letto, soggiorno separato dalla cucina tramite un caratteristico muro ad arco, e bagno di generose dimensioni con lavanderia. Completa la proprietà un posto auto di proprietà.

Appartamento al primo piano – Bilocale
Raggiungibile tramite scala esterna, è caratterizzato da una grande terrazza d’ingresso. Internamente si compone di soggiorno con cucina semi separata, disimpegno, bagno con vasca e camera da letto di generose dimensioni. Completa la proprietà un box auto di proprietà.

Una soluzione indipendente e versatile, con lavori già eseguiti, adatta a diverse esigenze abitative. È possibile valutare la vendita delle due unità anche separatamente:
Trilocale con posto auto € 140.000
Bilocale con box € 130.000

Mostra tutto

Nelle vicinanze

Trasporto pubblico Trasporto pubblico
Nembro Camozzi
Nembro Camozzi
460 m
Nembro Centro
Nembro Centro
560 m
967
967
150 m
994
994
150 m
Ricariche auto elettriche Ricariche auto elettriche
Nembro Carroccio | EnelX
620 m
Nembro | RESSOLAR Fast
670 m
Municipio di Nembro | Ressolar
710 m
ALDI Nembro
730 m
Nembro Riccardi | EnelX
790 m
Scuole Scuole
Scuola Primaria
730 m
Scuole
770 m
Istituto Alberghiero Alfredo sonzogni
1,2 Km
Scuola Primaria di Alzano Sopra
1,6 Km
Scuole elementari e Medie inferiori Di Alzano Capoluogo
2,1 Km
Farmacia Farmacia
Farmacia Rebba
710 m
Farmacia San Martino
1,1 Km
Farmacia San Faustino
1,5 Km
Farmacia Alzano Sopra
1,8 Km
Farmacia Pedrinelli
2,2 Km
Ospedali Ospedali
Ospedale di Alzano Lombardo
2,6 Km
Supermercati Supermercati
Aldi
740 m
Esselunga di Nembro
830 m
Supermercati
2,0 Km
Negozi Negozi
Invidia Outlet
950 m
Negozi
2,3 Km
Proposte Moda
2,3 Km
Trionfini
2,3 Km
Upim
2,4 Km
Bar Bar
Smart 24
550 m
bar Primavera
620 m
Bar
680 m
Bar
820 m
Bar delle piscine
2,1 Km
Ristoranti Ristoranti
Pizzeria tre Corone
880 m
Trattoria alle Piante
960 m
Osteria del Piajo
1,4 Km
Tenuta Colle Piajo
1,4 Km
Ristoranti
1,6 Km
Mostra tutto

Caratteristiche

Rif.:
61157085
Piano:
1 di 1 (Piano su più livelli)
Box:
1
Posti auto:
2
Terrazzi:
1
Camere da letto:
3
Mostra tutto
Prezzo Prezzo
€ 250.000
Rata mutuo Rata mutuo
€ 1.178 / mese
Spese annue Spese annue
€ 0
Proponi il tuo prezzoProponi il tuo prezzo

Classe Energetica

E
E
E
E
E
E
E
E
E
EP invernale del fabbricato:
EP estiva del fabbricato:
Anno di costruzione:
1967
Riscaldamento:
Autonomo
Tipo impianto:
A radiatori
Tipo alimentazione:
Metano

Ti interessa visionare l'immobile?

Fissa un appuntamento  Fissa un appuntamento

Richiedi informazioni

Clicca su Leggi per aprire l'informativa
* Questi campi sono obbligatori

Calcola il tuo mutuo

Semplice e senza impegno
Anticipo

( % )
Mutuo

( % )

pochi semplici passi

inserisci i tuoi dati
Questionario completato
Grazie per aver richiesto un appuntamento senza impegno con un nostro Consulente del Credito e Assicurativo.

Hai inserito correttamente tutti i dati necessari e a breve riceverai una e-mail con un link da convalidare per inviare i tuoi dati.
Affiliato
Agenzia Imm.re Gorle Srl
P.zza Papa Giovanni XXIII, 16 24020 Gorle (BG)

Il nostro staff


  • Claudia Meni
    Affiliata

  • Andrea Bombardieri
    Collaboratore

  • Lorenzo Bergamelli
    Collaboratore

  • Riccardo Bergamelli
    Collaboratore

  • Samuele Bergamelli
    Collaboratore

  • Christian Perico
    Collaboratore

  • Simone Previtali
    Collaboratore

  • Martina Trapletti
    Coordinatrice
P.zza Papa Giovanni XXIII, 16 24020 Gorle (BG)
Zona: Gorle-Scanzorosciate
Mostra su mappa
Affiliato
Agenzia Imm.re Gorle Srl
P.zza Papa Giovanni XXIII, 16 24020 Gorle (BG)

2026 Tecnocasa Franchising S.p.A. - P. IVA 08365160152 - Via Monte Bianco 60/A 20089 Rozzano (MI). Ogni agenzia ha un proprio titolare ed è autonoma. Privacy policy | Policy utilizzo | Cookie policy