Villa a schiera in vendita

Scanzorosciate, Via Monte Adamello - Gavarno
€ 330.000
Prezzo aggiornato
4 locali 4 locali
167 Mq 167 Mq
3 bagni 3 bagni

Villa a schiera in vendita

Scanzorosciate, Via Monte Adamello - Gavarno

Descrizione annuncio

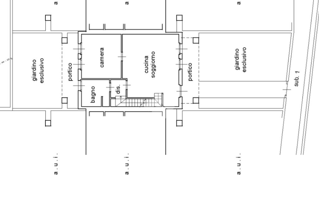
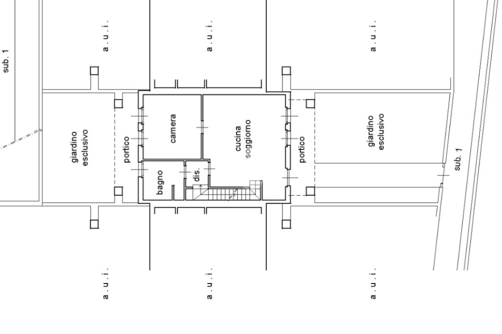
Scanzorosciate, nella frazione di Gavarno Vescovado proponiamo in vendita una villetta a schiera centrale edificata nel 2005, inserita in un piacevole contesto collinare immerso nel verde.

L’ingresso indipendente conduce al giardino di proprietà, uno spazio riservato che accompagna all’abitazione. Al piano terra si sviluppa la zona giorno in un luminoso ambiente open space, pensato per offrire convivialità e comfort nella vita quotidiana. Sullo stesso livello troviamo un bagno finestrato con vasca e una camera matrimoniale dalla quale si accede direttamente a un piacevole porticato e al terrazzo esclusivo sul retro.

Salendo al primo piano, impreziosito da travi in legno a vista, lucernari e abbaini che donano grande luminosità agli ambienti, ci accolgono dei locali pluriuso e un secondo bagno dotato di doccia.

Il piano interrato completa la proprietà con spazi di servizio funzionali e ben organizzati: una lavanderia con doccia, un locale tecnico con vano caldaia e un comodo ripostiglio, facilmente sfruttabile anche come cantina o taverna. Da questo livello si accede direttamente al box doppio in lunghezza.

L’abitazione è dotata di riscaldamento autonomo con caldaia a condensazione e impianto di climatizzazione tramite split presenti nella zona giorno e nelle due camere al piano superiore.

Questa villetta è ideale per chi cerca tranquillità senza rinunciare alla comodità dei principali servizi. La posizione consente infatti di raggiungere facilmente mezzi pubblici, scuole e attività di prima necessità.

Mostra tutto

Nelle vicinanze

Trasporto pubblico Trasporto pubblico
Nembro Centro
Nembro Centro
2,9 Km
Nembro Camozzi
Nembro Camozzi
2,9 Km
463
463
200 m
670
670
300 m
Ricariche auto elettriche Ricariche auto elettriche
FCS Negrone
1,6 Km
Nembro | RESSOLAR Fast
2,9 Km
ALDI Nembro
3,0 Km
Scuole Scuole
Scuole Elementari "Victor da Sabata"
160 m
Asilo Nido Comunale
1,6 Km
Scuole
2,2 Km
Scuola Elementare A. Moro
2,5 Km
Scuola Secondaria F. Nullo
2,8 Km
Farmacia Farmacia
Farmacia Tribulina
380 m
Supermercati Supermercati
U2
2,6 Km
Esselunga di Nembro
3,0 Km
Negozi Negozi
Alimentari e Panificio Eredi Marchesi
2,7 Km
Negozi
2,7 Km
Invidia Outlet
2,7 Km
Bar Bar
Oasi
320 m
Rondò
350 m
bar Primavera
2,0 Km
Bar
2,6 Km
Minibar
3,0 Km
Ristoranti Ristoranti
Castello del Gavarno
300 m
Cerri
1,1 Km
La Bironda
1,3 Km
Agriturismo Savoldi
1,3 Km
Azienda Agricola Colombì
2,2 Km
Mostra tutto

Caratteristiche

Rif.:
61191435
Piano:
Su più livelli di 2
Totale piani:
2
Box:
1
Terrazzi:
1
Camere da letto:
3
Mostra tutto
Prezzo Prezzo
€ 330.000
Rata mutuo Rata mutuo
€ 1.568 / mese
Spese annue Spese annue
€ 0
Proponi il tuo prezzoProponi il tuo prezzo
Immobile valutato con T·Valuta

Classe Energetica

D
D
D
D
D
D
D
D
D
EP globale non rinnovabile:
144.64 kW h/m² anno
EP invernale del fabbricato:
EP estiva del fabbricato:
Anno di costruzione:
2005
Riscaldamento:
Autonomo
Tipo impianto:
A radiatori
Tipo alimentazione:
Metano

Prezzo ridotto di €1 (3%%)

Ti interessa visionare l'immobile?

Fissa un appuntamento  Fissa un appuntamento

Richiedi informazioni

Clicca su Leggi per aprire l'informativa
* Questi campi sono obbligatori

Calcola il tuo mutuo

Semplice e senza impegno
Anticipo

( % )
Mutuo

( % )

pochi semplici passi

inserisci i tuoi dati
Questionario completato
Grazie per aver richiesto un appuntamento senza impegno con un nostro Consulente del Credito e Assicurativo.

Hai inserito correttamente tutti i dati necessari e a breve riceverai una e-mail con un link da convalidare per inviare i tuoi dati.
Affiliato
Agenzia Imm.re Gorle Srl
P.zza Papa Giovanni XXIII, 16 24020 Gorle (BG)

Il nostro staff


  • Claudia Meni
    Affiliata

  • Andrea Bombardieri
    Collaboratore

  • Lorenzo Bergamelli
    Collaboratore

  • Samuele Bergamelli
    Responsabile

  • Christian Perico
    Collaboratore

  • Simone Previtali
    Collaboratore

  • Martina Trapletti
    Coordinatrice
P.zza Papa Giovanni XXIII, 16 24020 Gorle (BG)
Zona: Gorle-Scanzorosciate
Mostra su mappa
Affiliato
Agenzia Imm.re Gorle Srl
P.zza Papa Giovanni XXIII, 16 24020 Gorle (BG)

2026 Tecnocasa Franchising S.p.A. - P. IVA 08365160152 - Via Monte Bianco 60/A 20089 Rozzano (MI). Ogni agenzia ha un proprio titolare ed è autonoma. Privacy policy | Policy utilizzo | Cookie policy